여러분 안녕하세요! 키친리더 입니다 :)
오늘 소개해드릴 컨설팅 이야기는 바로!
분당 정자동의 맛집! 한소헌 입니다.
저희 키친리더에 2018년 2월28일에 의뢰가 들어오게 되었는데요!

첫 미팅때 저희에게 주신 손스케치 자료입니다!
이런식으로 스케치해주신다면 조금 더 확실하게 고객님이 원하는 주방스타일을 알 수 있어서
저희도 만족! 고객님도 만족!
손 스케치 자료와 함께 나눈 미팅내용을 토대로
먼저 1안, 2안으로 초안을 작업 하였습니다!


도면을 기준으로 오른쪽에 퇴식기기가 일자형태로 동선이 이루어지도록 배치 되었고,
주방뒷편에는 메인요리를 조리 할 간텍기와 냉면렌지, 사리냉각기등 냉면조리를 위한 기기들을 놓아보았습니다.
중앙에는 작업대, 밧드 테이블냉장고, 육수냉장고등을 놓아 조리후 배식하기전의 준비공간으로 활용 될 수 있도록 설계되었습니다!
조리기기와 저장기기들의 위치를 바꾸어서 두가지 안으로 초안이 완성되었고,
그후 인테리어측에서 받은 도면을 바탕으로 수정작업을 진행하게 되었습니다!


초안과는 조금 다른 느낌으로 설계가 완성되었는데요!
초안에서는 'ㅁ'자 형태로 주방기기가 배치 되었다면 이번에는 기기들을 세로로 놓아
공간이 따로따로 분리되는 식으로 설계 가 되었습니다.
이러한 기기배치는 조리후 바로 배식이 가능하다는 장점 이 있죠!
그 외에도 주방과 홀의 경계에 있던 배식작업대를 삭제한뒤 인테리어장을 짜놓는 형태로 변경 되었고,
홀쪽에서 손님들에게 보일수 있도록 고기숙성고가 배치 되었습니다.
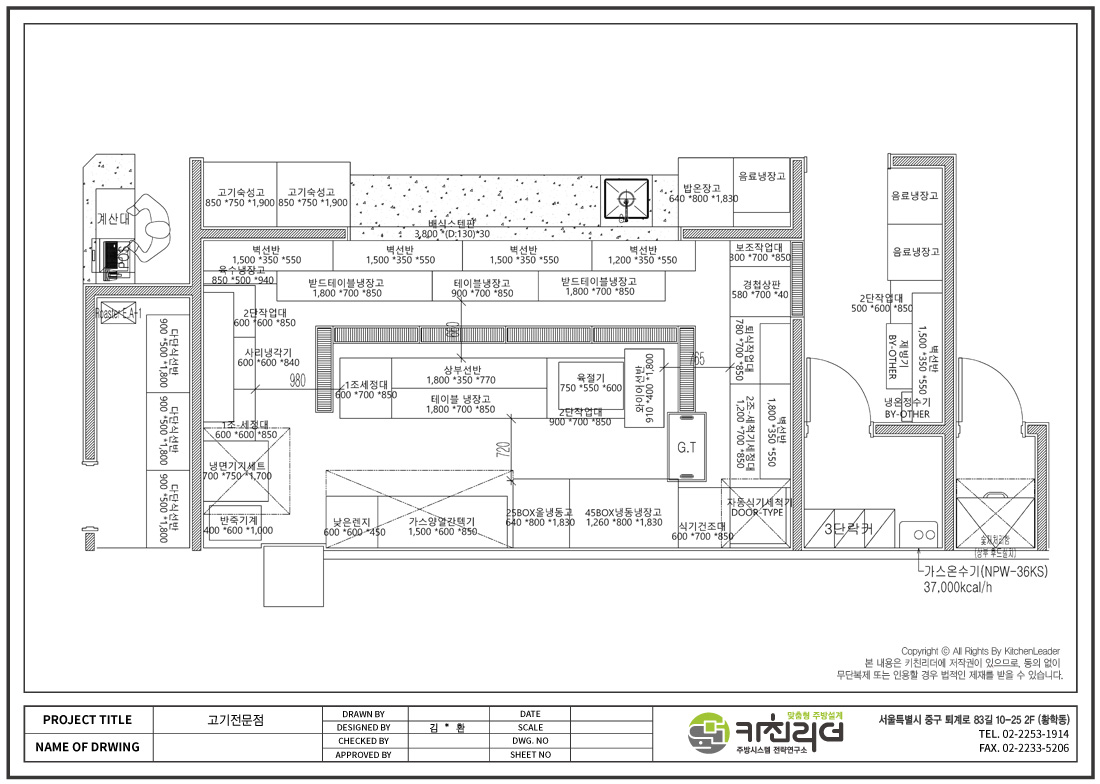
그렇게 수정작업을 한 뒤 완성된 최종도면!
바로 보실까요?!



초안에서의 모습처럼 'ㅁ'자 형태의 주방 으로 확정!!
주방직원들의 동선이 겹치지 않으면서 효율적이고 깔끔하게 주방이 잘 나온것 같아요 :)
그렇게 주방설계가 마무리 되고, 납품까지 진행된 후
키친리더가 한소헌으로 방문해보았습니다!!
매장의 모습을 한번 볼까요?

분당 정자동에 있는 한서원의 모습이에요!
2층에 위치하고 있습니다!




홀과 테이블의 모습입니다.
차분하고 고급진 인테리어에 룸 형식의 좌석 도 있기 때문에
중요한 미팅때의 식사장소로도 손색없을것 같아요 :)
그뿐만 아니라 2층 매장이기 때문에 외부 조망까지 좋습니다!!


홀쪽 주방의 모습입니다.
투명한 유리문의 고기숙성고 를 통하여 신선한 고기도 볼수있고~
인테리어 효과까지 있어서 좋은것 같아요.

고기 이외에도 고급스러운 생맥주와 와인까지 있답니다 :)



주방 컨설팅에 함께한 키친리더가 주방모습을 빼놓을순 없겠죠?!
도면모습처럼 기기가 깔끔하게 안착된 모습입니다 ^^



한소헌의 박재현 대표님께서는 외식경영 7월호 에
'입지의 불리함, 경험과 상품력으로 극복한다' 라는 주제로 인터뷰를 하셨다고 하는데요!
창업을 준비중이신 분들께서 읽어보시면 도움이 되는 좋은 말씀이 많이있으니 한번 읽어보시면 좋을것같아요!!
오늘의 고기전문점 한소헌의 컨설팅 이야기 는 여기까지 입니다.
다음번에도 유익한 정보로 다시 돌아올것을 약속드리며! 저는 물러가도록 하겠습니다!
끝까지 읽어주셔서 감사합니다 :)

