무더웠던 여름이 지나가고 선선한 바람을 느껴볼 수 있는 가을이 성큼 다가오고 있네요 : )
이번 컨설팅은 국내가 아닌 해외에서 의뢰가 들어왔어요.
저희 강동원 회장님께서 해외까지 뻗어나갈 수 있도록 베트남의 고기집을 함께 설계해 보기로 했죠.
베트남 고기집 내부와 외부가 어떻게 생겼는지 궁금했는데,
식당 내부를 동영상으로 찍어서 보내주셨어요.
베트남으로 도면을 보내기에 앞서서 도면작업이 시작되었는데요.
배식대 앞으로는 보조주방으로 사용해서 음료냉장고, 밧드냉장고, 소독기 등을 설치해주었어요.

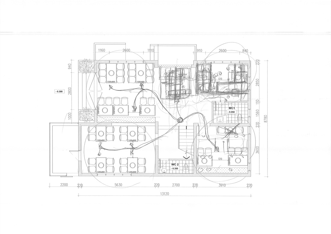
[ 베트남 고기집 1차 도면 ]

[ 베트남 고기집 1차 도면_확대 ]
이렇게 해서 완성된 1차 도면입니다.
이후에 도면수정요청이 들어와서 작업을 하려고 도면을 다시 받아보니 1층이 아니라 3층까지 되어있는 건물이었어요.
2,3층에는 메인주방은 없었고 홀에 테이블 배치를 해주고 별도의 보주주방을 꾸며봤습니다.
주방 뿐만 아니라 홀 안에 테이블 배치도 함께 해보기로 했죠.
홀에 테이블배치를 시작했을 때 저희 강동원 회장님께서 손스케치로 자리를 잡아주셨고,
그에 맞춰서 제가 도면에 입히는 형식으로 진행이 되었죠.
마치 내가 고기집 손님이 되어서 테이블에 앉았을 때 편리한지, 다른 사람들과 부딪히지 않는지 등의 동선이 중요했죠.



식당에서 가장 중요한 주방은 작업자의 동선이 1순위이기 때문에 주방기기를 이렇게도 배치해보고 저렇게도 배치해봤어요.
베트남으로 자료를 보내드리기 전에 대표님께서 추가사항으로 1층주방 우측에 자재창고가 추가되었고,
홀 바깥쪽으로 숯장치실이 추가가 되었어요.
아무래도 고깃집이다 보니 고기를 저장해 놓을 수 있는 창고가 필요로 했고, 숯장치실이 필요하셔서 추가된 사항 입니다.
자재창고가 생기면서 주방에서 나갈 수 있는 문을 만들어서 이동이 편리하도록 했습니다.

[ 베트남 고기집 2차 도면_1층 ]

[ 베트남 고기집 2차 도면_1층 확대 ]
위에서 언급했듯이, 숯장치실이 추가되면서 그 공간 안에 기기가 설치되었는데요.
숯발화기, 다단식선반, 불판세척기, 작업대, 세정대가 설치되었어요.
그리고 자재창고에는 식품을 조금 더 신선하게 보관할 수 있도록
저장공간을 넉넉하게 해주었습니다.

[ 베트남 고기집 2차 도면_2층 ]

[ 베트남 고기집 2차 도면_2층 확대 ]
2층에는 전체를 홀로 사용하나 했는데, 한쪽에는 보조주방으로 사용할 수 있게 꾸며봤습니다.
1층에서는 메인요리를 2층에서는 그 음식과 함께 나갈 밑반찬 등을 가지고 서빙할 수 있게
밧드테이블냉장고, 작업대, 세정대, 다단식선반이 설치되었어요.

[ 베트남 고기집 2차 도면_3층]
3층에는 홀 위주로 꾸며졌으며, 음료냉장고와 작업대로 마무리가 되었죠.
3개의 층 도면이 완성되었어요.
이후에 베트남 현지에 찾아가신 강동원 회장님!
그리고 최종까지 변화된 도면의 모습을 더 보여드릴거에요!
궁금하시다면 다음편에 함께 하세요 : )
추석연휴 시작인데 다들 즐거운 한가위되세요!!

