안녕하세요. 키친리더 입니다 : )
얼마전까지만 해도 차가운 바람이 불던 겨울날씨 였는데
또 금방 따뜻한 바람과 함께 봄이 찾아 왔네요.
살랑살랑 부는 봄바람과 함께 컨설팅 의뢰가 왔는데요.
종로에 위치하고 있는 한정식 전문점의 설계의뢰에요.
식당 대표님께서 담당 인테리어 직원과 연결 해주셔서 자료를 주고 받고,
저희 키친리더 현장담당 직원분과의 원활한 의사소통 덕분에
설계 작업을 하는데 많은 도움이 되었죠.
먼저, 인테리어측에서 받은 자료로 도면을 보내주셨는데요.
생각했던 것보다 규모가 컸어요.
지하1층과 지상1층으로 두개의 층의 의뢰였어요.
지하1층을 메인주방으로 사용하시고,
지상1층을 보조주방으로 사용이 된다고 하셨어요.

[ 인테리어_건축도면 지하1층 ]

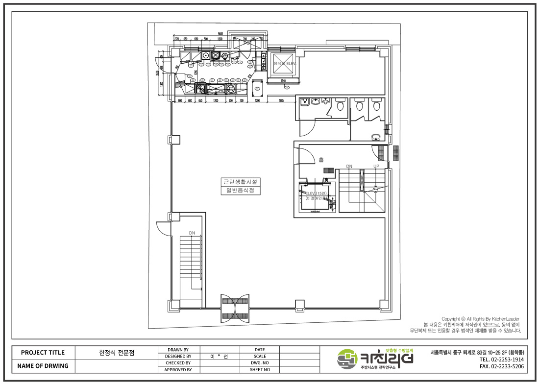
[ 인테리어_건축도면 지상1층 ]
주방의 규모를 대략 잡아주시면서 초안을 요청하셨어요.
그리고 현장의 이해를 조금 더 잘 할 수 있게
저희 담당자분께서 현장방문해서 실시간으로 사진파일을 보내주셨어요.








이렇게 현장사진과 인테리어측에서 주신 도면을 함께 보니
이해가 쉽게 되어 도움이 많이 되었죠.
이 한정식집은 메뉴도 다양하니 한정식에 필요한 기기는 최대한으로 넣어주시면 된다고 하셨어요.
그렇게 해서 작업이 시작되었고, 최대로 필요한 기기배치를 해서 1차 도면이 완성 되었어요.

[ 지하1층_1차도면 ]

[ 지상1층_1차도면 ]
1차도면을 보내드린 후에 컨펌을 받고 재작업이 시작되었어요.
우선, 지하1층 메인주방은 주방의 크기를 조금 키우고,
안에 배치되었던 저장기기, 조리기기들의 위치조정을 했고
추가적으로 필요한 선반들이 설치되었어요.

[ 지하1층_2차도면 ]
지상1층 보조주방은 홀쪽으로 나와있던 기기들을
주방안으로 배치하면서 기존에 두었던 선반은 삭제!

[ 지상1층_2차도면 ]
2차도면까지 완성이 되고 현장방문해서 미팅이 시작되었어요.
지하1층의 메인주방은 이대로 해도 괜찮다고 하셨고,
지상1층의 보조주방의 수정사항이 있었어요.
가운데에 음식물 엘리베이터(덤웨이터)를 기준으로
왼쪽으로 보조주방을 꾸몄었는데, 왼쪽에는 다른 공간으로 사용을 하신다고 하셔서
오른쪽으로 기기를 이동했어요.

[ 지상1층_3차도면 ]
3차도면까지 완성이 된 후에 도면을 확인하시던 중
수정해야할 부분이 생기셨다고 연락이 왔는데요.
지상1층 메인주방의 배식대 쪽에 이동식작업대가 다니기에 좁아서
공간을 조금 넓혀주는 작업이었어요.
이런 작업은 사실 간단한 문제였지만 대표님께서 너무 미안해 하시면서 부탁하셔서
오히려 제 입장에선 그런 마음에 너무 감사했어요.

[ 지하1층_4차도면 ]
정말 미세하게 조금 이동되어 티가 안나지만!?
기기를 배치하면 정말 달라진다는점!!
종로 한정식 전문점의 도면이 4차까지 완성되었지만
아직 여기서 끝나지 않았으니!!!
다음 2번째 이야기로 넘어오셔서 함께해요 : )

