안녕하세요!! 키친리더 입니다 : )
키친리더에서 오늘 준비한 주방컨설팅은
불고기전문점의 주방입니다.
신규건물에 만들어질 불고기전문점!!
어떻게 설계가 이루어졌는지 보여드릴게요~

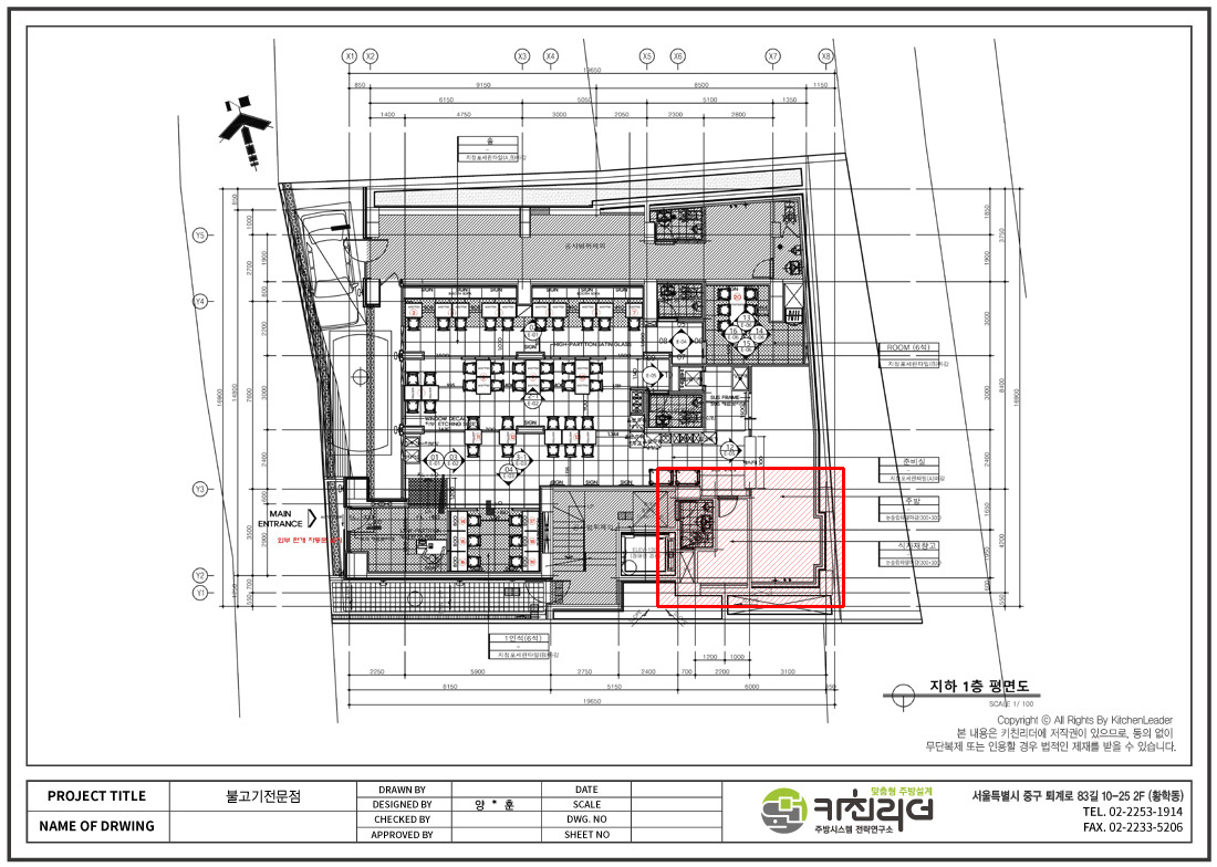
[ 건축도면 ]
저희와 의사소통은 주로 전화와 자료는 메일로 주고 받으며 진행이 되었습니다.
저희쪽으로 보내주신 건축도면 입니다.
위에 보시면 빨간색으로 빗금 쳐져있는 부분이 주방입니다.
주방을 어떻게 꾸밀지 저희 담당 직원분과 함께 배치를 해보기로 했습니다.
불고기집 주방에 필요한 기기들을 넣어봤습니다.
이곳에서는 불고기 뿐만 아니라 면종류의 음식도 함께 하신다고 하셨어요.
면은 직접 뽑아 사용할지 기성품을 사용할지 고민이셔서 저희가 2가지 안을 제시해 드렸어요.

[ 1차도면 - 1안 ]
조리기기는 불고기가 직화구이로 나갈 수 있도록 직화렌지가 설치되었고
초벌을 할 수 있는 그릴러(숯불바베큐) 2대가 설치되었어요.
그 외에는 퇴식기기와 식재료 보관할 수 있는 저장기기들이 설치되었어요.
1안에서는 면을 기성품으로 사용한다고 가정했을 때를 상상해서
면렌지만을 설치가 되면서 낮은렌지는 2구로 설계가 완료 되었어요.

[ 1차도면 - 2안 ]
1안과 다른점은 2안에서는 면을 직접 뽑아서 하셨을 때의 도면인데요.
여기에서는 냉면기계 세트를 설치해서 직접 면을 뽑을 수 있도록 했어요.
대신에 2안에서는 낮은렌지를 1구로 변경되어 도면이 완성되었죠.
그리고 그릴러(숯불바베큐)는 2대 중에 1대는 간텍기렌지로 변경이 되었어요.

[ 2차도면 ]
위에서 제안해드린 도면 중에서 2안의 도면을 선택해주셨어요.
2안에서 가스3구렌지를 2구렌지로 변경하셨어요.
변경된 도면으로 대표님께 전달해 드렸어요.

[ 최종도면 ]
최종적으로 2차도면에서 불필요한 기기(45BOX냉동냉장고)를 체크해주셔서 삭제한 후에
마무리를 지었어요.
도면 완성이 된 후에 저희 담당 직원분께서 기기 납품을 하고 오셨어요.
현장에 도착해서 설치하는 과정을 사진으로 담아주셔서 보면서 이해하기에 너무 좋았어요.

[ 후드 설치하는 모습 ]

[ 후드 설치하는 모습 ]
위에서 보신 최종도면과 같이 기기들이 제 자리를 찾아서 설치되어지는 과정이에요.
퇴식기기, 조리기기, 배식기기 등 기기가 설치되는 모습을 보여드릴게요.












주방에 기기배치가 완료되었어요.
조리기기에서 꼭 필요로 하는 후드설치는 물론!!
조리시 나오는 기름기 섞인 오물과 허드레 물을 모아 한 곳으로 배출 가능하도록 해주는 트렌치 설치도 완료!!
더운 날씨에 무거운 기기 옮기고 설치하신 직원분들께 박수를 보내드립니다 : )
짧다면 짧은 기간이었던 3개월, 저희 키친리더와 함께 해주셔서 너무 감사드립니다.
대박나시길 응원하겠습니다 : )

