여러분 안녕하세요!
오늘도 여러분께 유익한 정보를 알려드리기 위해 돌아온 키친리더 입니다:)
이번 컨설팅건은 이자까야전문점 인데요
식당에서 가장 중요한 동선짜는데에 어려움을 겪으신 대표님께서 의뢰를 주셨는데요!^.^
전화상담후 매장의 평면도 캐드파일 전달받았습니다.
다음날 젋은 점주님 두분이서 주방 초안을 들고 방문해 주셧는데요~
기존에 일식집 가게를 하시다가 장사가 잘 되어, 2호점을 오픈하기 위해 방문해 주셨는데~
1호점이 너무 불편하게 운영하셧다고, 2호점은 좀 더 편하게 배치하고자 상담을 요청하셨습니다!

인테리어팀에서 건네받은 도면입니다.
창고와 주방을 분리해 주었네요.
퇴식주방 부분에는 가벽을 세워주었는데,
오픈매장이기 때문에, 퇴식부분을 가리고 싶어 하셧어요.

먼저 A안을 잡아주었습니다~
점주님들이 생각하셧던 주방입니다.
주방 앞부분엔 테이블 냉장고를 설치해 배식을 용이하게 해 주었고,
하이볼 종류도 들어가기 때문에 하부엔 제빙기를, 상부엔 하이볼 기계를 설치해 주었구요.
뒤폇에는 조리공간으로 배정해 주었습니다~
가벽을 세워준 퇴식공간은 세척기기들로 배치해 주었습니다.
하지만! 저희 키친리더가 보기엔 조금 더 개선할 수 있는 부분이 보이네요!

B안입니다~
동선 자체에는 크게 변경이 없지만,
퇴식동선이 길어졋던 A안과 달리 탁 트여서 작업해 주었습니다.
퇴식부분이 보이는걸 걱정하셧지만!
커튼을 달아서 가리는걸로 하고, 동선을 좀더 편하게 주었습니다.
창고에도 저장기기들을 배치해 주어 좀 더 여유롭게 운영하실 수 있도록 해 주었습니다.
점주님들도 초안보단 훨씬 편해진 동선과 주방기기 배치에 만족해 하시고 돌아가셧습니다~

저희 키친리더에서 실측 현장을 방문했습니다~
현장에 맞춰서 수정은 필수입니다!
주방기기가 배치되기 전 수도는 어디에 어떤식으로 뽑을지, 전기콘센트 위치는 어디인지등 을 인테리어업체로 알려드려야
필요한 기기쪽에 전기와 수도를 정확하게 뽑아 놓을 수 있기 때문에 정말 중요한 과정이라는점! 여러분 모두 아시죠?
이런 세세한 과정까지 원스텝으로 진행될수 있는건 주방전문가 키친리더 이기 때문인것 같아요^.^

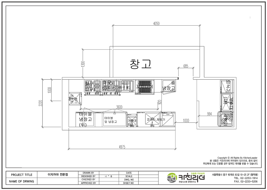
현장 상황에 맞추어 사이즈를 변경해 주었습니다~

컨설팅은 이렇게 마무리 되었습니다!
동선을 표기해보면 크게 4곳으로 분류해 주었습니다~
점주님들에게 컨펌 후 컨설팅이 마무리 되었습니다!
컨설팅이 마무리 된 후! 드디어 첫 납품이 진행되었습니다~
모두 납품된 후 마무리된 모습이 궁금하시다면! 곧 키친리더의 <현장사진> 카테고리에 업로드 될 예정이오니
많은 정보 받아가시길 바랍니다.
소중한 나만의 주방, 어떻게 만들어야할지 고민이라면!
주방전문가 키친리더에게 맡겨주신다면 효율적이고 알찬 돈버는주방을 만들어드리도록 하겠습니다~
오늘의 컨설팅 이야기는 여기까지 입니다. 감사합니다~

