이번 매장은 백화점 내에 입점하는 프리미엄 한정식 전문점입니다.
특히 점주님이 한식 기능장이신 만큼, 주방 설계에 있어 기능적인 완벽함과 위생,
그리고 기능장만의 노하우가 담긴 동선을 구현해야 했기에 그 어느 때보다 난도가 높은 컨설팅이었습니다.
생선구이가 주메뉴인 만큼 숯불 착화 및 생선 손질 공간을 독립적으로 확보하는 것이 관건이었으며,
백화점이라는 특수 상권에 맞춰 한정된 공간 내에서 대형 워크인 시설과 효율적인 배·퇴식 동선을 짜는 데 집중했습니다.

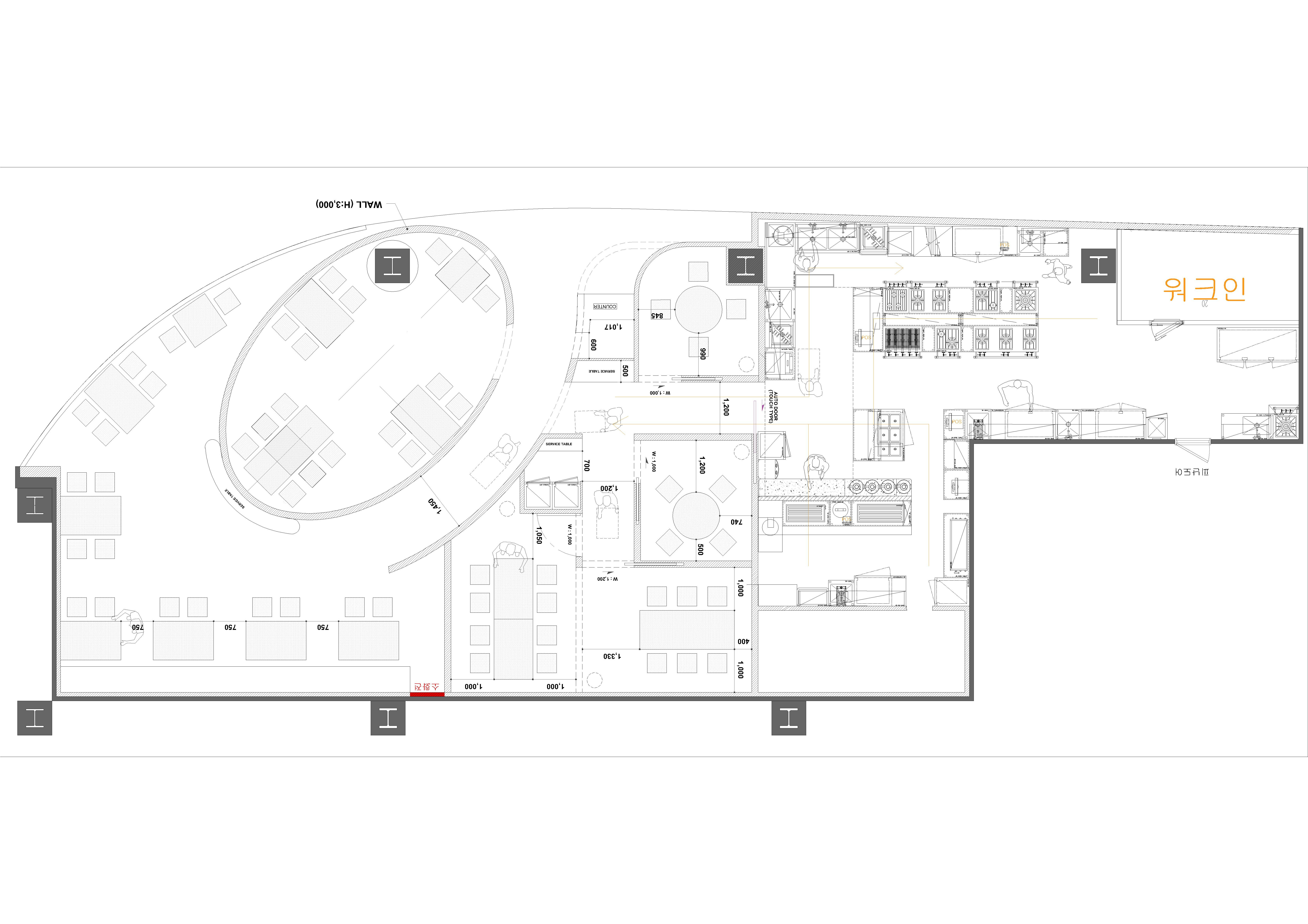
전체 평면도입니다.
백화점 특유의 긴 동선을 고려하여 좌측은 고객 홀, 우측 상단은 메인 주방 및 저장 공간으로 구성했습니다.
입구 근처에 배식과 퇴식을 배치하여 홀 직원들의 동선을 최소화했으며, 주방 안쪽으로 갈수록 전처리와 대규모 저장 공간(워크인)이 위치하게끔 설계했습니다.

기능장 점주님을 위한 맞춤형 조리 라인을 구성 해 드렸습니다.
전문적인 조리를 위해 생선 손질 공간과 조리 공간을 분리했습니다.
숯불을 사용하는 메뉴 특성상 숯 착화 및 세척실을 별도로 두어 연기와 오염이 메인 조리 공간으로 넘어오지 않도록 차단했습니다.
또한, 기능장님의 요청에 따라 밥솥 4개를 나란히 배치하고 배식대 상부에 오버헤드워머를 설치해 음식이 최상의 온도로 나갈 수 있게 세팅했습니다.

신선한 식재료 보관을 위해 주방 가장 안쪽에 대형 워크인 냉장고를 배치했습니다.
그 바로 옆으로 전처리 공간을 두어 '식재료 반입 → 저장 → 손질 → 조리'로 이어지는 원스톱 동선을 완성했습니다.
하단에는 별도의 건식창고를 두어 비품 보관까지 용이하게 했습니다.
또한 백화점은 설비 기준이 까다롭기 때문에 트렌치 설치 및 급배수 도면을 아주 세밀하게 작업했습니다.
식기세척기뿐만 아니라 석쇠 전용 세척기까지 배치하여 한정식 특유의 설거지 고민을 해결해 드렸습니다.

각종 설비도 또한 아주 꼼꼼하게 진행을 도와 드렸습니다.
백화점에 컨펌을 받아야 하는 만큼 두번 세번 체크 후 전달 드렸습니다.

참고용 3D도 준비 했습니다.



한식 기능장 점주님의 높은 안목을 만족시키기 위해 여러 번의 도면 수정과 미팅이 있었지만,
결과적으로 전문성과 효율성을 모두 잡은 주방이 탄생했습니다.
이번 사례가 백화점 입점을 준비하시거나,
전문적인 한식 주방 설계를 고민 중인 사장님들께 좋은 이정표가 되길 바랍니다.

